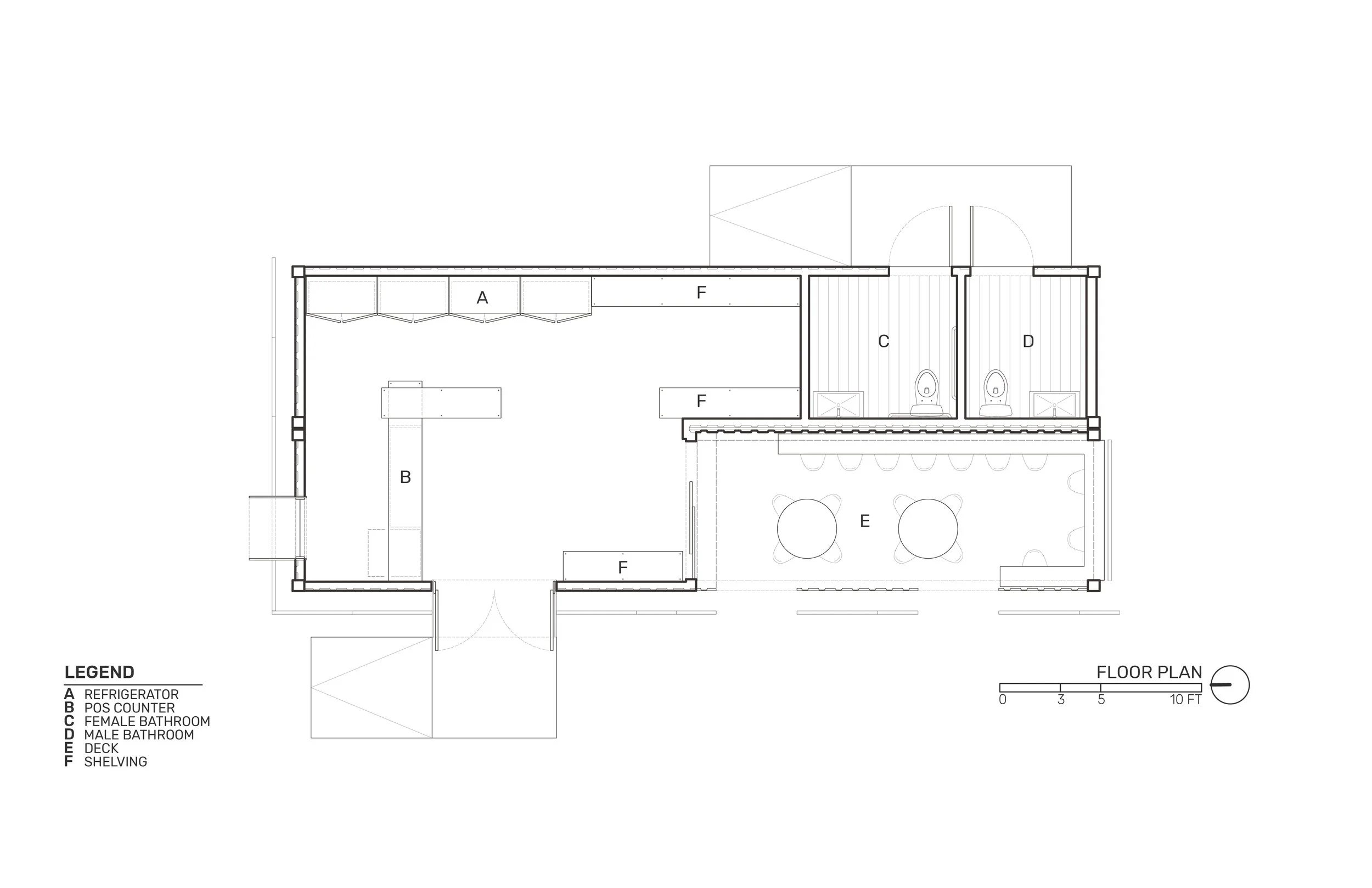
EV HUB
Keeping up with technology, this electronic vehicle charging station located in Enicinitas California incorporates the use of two 40 foot retrofitted shipping containers to serve as a grab and go hangout spot while charging up your eco friendly automobile
